Accueil > L’actualité de la ville de Soultz >
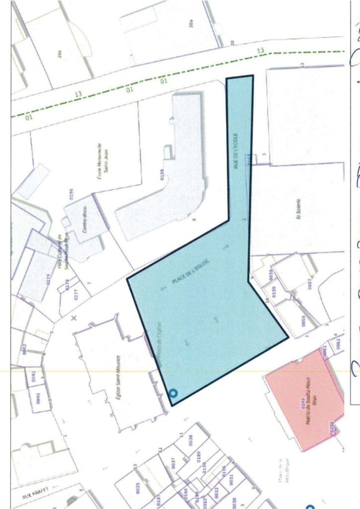
Information Travaux : Place de l’Église
POINT AVANCEMENT LE 7 MAI 2026, les travaux effectués :
- Nouveau réseau principal d’AEP (Alimentation en Eau Potable) mis en place.
- Nouveau réseau eau pluviale côté SUD installé.
- Les travaux sur les gaines pour les réseaux secs sont en cours (électricité, sonorité, éclairage secondaire…).
DANS LES PROCHAINES SEMAINES :
- Mise en place des bordures pour le parking et l’ilot de verdure, rue de l’école.
- Élévation du muret de l’école Krafft.
- Poursuite de la pose des réseaux secs.
- Pose des gaines de chauffage pour le réseau urbain (entre l’école KRAFFT et la chaufferie de l’église).

Photo datant du 12 mai 2026.
Dès le lundi 13 avril à partir de 8h30 et jusqu’au mois d’août 2026 (prévisionnel), le parking de la Soierie ainsi que le parking de la rue de l’école ne seront plus accessibles en raison des travaux (piétons et véhicules). Toutes les places de stationnements sur la place de l’église seront interdites (sauf la partie Nord).
Une déviation empruntera les rues De Gaulle, Jean Jaurès pour accéder en haut de la Place de la République et aux commerces qui restent accessible durant les travaux.
A partir du lundi 27 avril, l’accès à l’école Krafft pour les élèves se fera par le portail de la Rue de la Marne.
- Accès piétons : par passage fléché pôle culturel par le côté nord de l’église
- Ecole KRAFFT et gymnase KRAFFT accès par le portail école : rue de la Marne
- Accès DIX de der : par le parking arrière de la rue des sœurs
Le stationnement est recommandé sur le parking de la MAB.
Merci pour votre compréhension.
